
|
上海川沪阀门有限公司专业生产的锻钢Y型过滤器,适用于高压工况对管道设备中杂质进行过滤。压力等级一般从800Lb-1500Lb,连接方式有法兰、螺纹和焊接。螺栓式阀盖,按这种设计形式设计的阀门,其阀体与阀盖用螺栓连接,缠绕式垫片(304加柔性石墨制造)或采用金属环连接密封。 |
![]() |
锻钢Y型过滤器 |
| 序号 | 零件名称 | A105/F6a | A105/F6工HFS | LF2/304 | F11/F6aHF | F304(L)/304(L) | F316(L)/316(L) | F51/51 |
| 1 | 阀体 | A105 | A105 | LF2 | F11 | F304(L) | F316(L) | F51 |
| 2 | 过滤网 | 304 | 304 | 304 | 304 | 304(L) | 316(L) | 316(L) |
| 3 | 铭牌 | AL | AL | AL | AL | AL | AL | AL |
| 4 | 铆钉 | H62 | H62 | H62 | H62 | H62 | H62 | H62 |
| 5 | 垫片 | 304+柔性石墨 | 304+柔性石墨 | 304+柔性石墨 | 304+柔性石墨 | 304+柔性石墨 | 304+柔性石墨 | 304+柔性石墨 |
| 6 | 阀盖 | A105 | A105 | LF2 | F11 | F304(L) | F316(L) | F51 |
| 7 | 螺栓 | B7 | B7 | L7 | B16 | B8(M) | B8(M) | B8M |
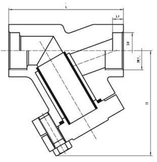
![]() |
锻钢Y型过滤器外形尺寸图 |
| 规格(NPS) | R.P | . | 1/2 | 3/4 | 1 | 1-1/4 | 1-1/2 | 2 | 2-1/2 | 3 |
| F.P | 1/4 | 3/8 | 1/2 | 3/4 | 1 | 1-1/4 | 1-1/2 | 2 | 2-1/2 | |
| 结构长度(mm) | L | 98 | 98 | 111 | 120 | 140 | 140 | 170 | 200 | . |
| 中心高度(开) | H | 70 | 70 | 70 | 100 | 110 | 120 | 120 | 150 | . |
| 流道孔径(mm) | d | 7 | 9 | 13 | 17.5 | 30 | 30 | 35 | 46 | . |
| 重量(Kg) | 2.2 | 2.2 | 2.1 | 4.2 | 8.9 | 8.9 | 10 | 18.6 | . | |
| 规格(NPS) | F.P | 3/8 | 1/2 | 3/4 | 1 | 1-1/4 | 1-1/2 | 2 |
| 结构长度(mm) | L | 98 | 111 | 120 | 140 | 140 | 170 | 200 |
| 中心高度(开) | H | 70 | 70 | 100 | 110 | 120 | 120 | 150 |
| 流道孔径(mm) | d | 9 | 12 | 15 | 20 | 28 | 32 | 40 |
| 重量(Kg) | 2.1 | 4.2 | 9 | 8.9 | 10 | 18.6 | 20 | |
备注:本过滤器有壳体、排污盖、滤芯、滤网等组成。网眼总面积是入口管首截面积的3-4倍.
用于管道清除输送介质:热水、冷水、蒸汽、压缩空气各种机械杂质,特别是锅炉房循环水泵前均需安此产品,为了清除系统中的机械杂质,使设备和管道免受堵塞和磨损,在额定流速下压损为0.05-0.1米水柱。
用于各种用汽设备,如:蒸汽仪表、疏水阀,压缩空气和各类用汽设备前均需安装。在额定流速下压损为0.05-0.2米水柱。
油过滤器该主品滤眼密度有多种。例如:64孔、200孔、300孔/Cm2。用于各种输油管道上一切设备。例如:油泵、油锅炉前均需安装,在额定流速下压损为0.05-0.1米水柱。
|
|