
|
上海川沪阀门有限公司专业生产的H41F46衬氟止回阀是一种依靠介质本身的流动而自动启闭阀瓣用来阻止介质逆向流动的自动防腐阀门,又称为逆止阀和单向阀。H41F46衬氟止回阀适用在-60℃~150℃的各种浓度的王水、硫酸、盐酸、氢氟酸和各种有机酸、强酸、强氧化剂,FEP还适用于各种浓度的强碱有机溶剂以及其它腐蚀性气体、液体介质的管路上使用。 |
![]() |
H41F46衬氟止回阀 |
| 序号 | 零件名称 | 灰铸铁 | 铸钢 | 不锈耐酸铸钢 | 超低碳不锈耐酸铸钢 | ||
| Z | C | P | R | PL | RL | ||
| 1 | 阀体/阀盖 | HT250 | WCB | CF8 | CF8M | CF3 | CF3M |
| 2 | 阀瓣/阀杆 | 35 | 1Cr13 | 1Cr18Ni9 | 1Cr18Ni12Mo2Ti | 00Cr18Ni10 | 00Cr17Ni14Mo2 |
| 3 | 衬里/阀座 | PCTEF(F3),FEP(F46),PFA(可溶F4),PP,PO | |||||
| 4 | 紧固螺栓 | WCB | 1Cr17Ni2 | 1Cr18Ni9Ti | |||
| 5 | 螺母 | PTFE(F4) | CF8 | CF8 | |||
![]() |
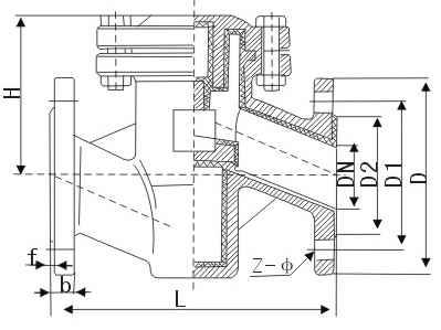
H41F46衬氟止回阀外形尺寸图 |
| 公称通通径 | L | D | D1 | D2 | f | b | Z-φd | ||||
| DN(mm) | PN1.6MPa | ||||||||||
| 15 | 130 | 130 | 95 | 65 | 2 | 14 | 4-φ14 | ||||
| 20 | 150 | 150 | 105 | 75 | 2 | 16 | 4-φ14 | ||||
| 25 | 160 | 160 | 115 | 85 | 2 | 16 | 4-φ14 | ||||
| 32 | 180 | 180 | 135 | 100 | 2 | 18 | 4-φ18 | ||||
| 40 | 200 | 200 | 145 | 110 | 3 | 18 | 4-φ18 | ||||
| 50 | 230 | 230 | 160 | 125 | 3 | 20 | 4-φ18 | ||||
| 65 | 290 | 290 | 180 | 145 | 3 | 20 | 4-φ18 | ||||
| 80 | 310 | 310 | 195 | 160 | 3 | 22 | 4-φ18 | ||||
| 100 | 350 | 350 | 215 | 180 | 3 | 24 | 8-φ18 | ||||
| 125 | 400 | 400 | 245 | 210 | 3 | 26 | 8-φ18 | ||||
| 150 | 480 | 480 | 280 | 240 | 3 | 28 | 8-φ23 | ||||
| 200 | 600 | 495 | 335 | 295 | 3 | 30 | 12-φ23 | ||||
注:表中尺寸为不带标准附件数据。另由于产品改进技术创新参数可能有一定变化,请咨询公司技术部门索取新数据。
|
|