
|
上海川沪阀门有限公司专业生产的H44J旋启式衬胶止回阀,适用于具有一定的腐蚀性的工况,阀体内部所衬的橡胶可以耐受一定程度的酸碱腐蚀,如果介质具有较强的腐蚀性,则可以选用衬氟止回阀。H44J旋起式衬胶止回阀,用于管道中防止介质倒流,保护水泵和管道的安全。 |
![]() |
H44J衬胶止回阀 |
| 遵循规范 | STANDARD |
| 设计与制造 | GB/T 12235、GB/T12236 |
| 结构长度 | GB/T 12221、JB/T 96 |
| 法兰尺寸 | JB/T 78、JB/T 79 |
| 压力试验 | GB/T 13927 |
| 标志 | GB/T 12220 |
| 供货 | GB/T 12252 |
![]() |
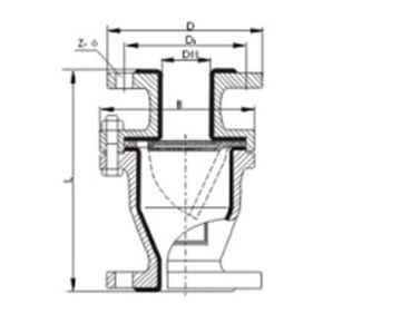
H44J衬胶止回阀外形尺寸图 |
| 公称通径 | 标准值 | 参考值 | ||||||||||
| DN (mm) |
NPS (inch) |
L | D | D1 | D2 | f | b | Z-Φd | Do | H | WT(Kg) | |
| PN0.6Pa | ||||||||||||
| 15 | 1/2 | 130 | 80 | 55 | 40 | 2 | 12 | 4-Φ12 | 105 | 55 | 4 | |
| 20 | 3/4 | 150 | 90 | 65 | 50 | 2 | 14 | 4-Φ12 | 115 | 58 | 5 | |
| 25 | 1 | 160 | 100 | 75 | 60 | 2 | 14 | 4-Φ12 | 128 | 60 | 6 | |
| 32 | 11/4 | 180 | 120 | 90 | 70 | 2 | 16 | 4-Φ14 | 145 | 75 | 7 | |
| 40 | 11/2 | 200 | 130 | 100 | 80 | 3 | 16 | 4-Φ14 | 160 | 82 | 8 | |
| 50 | 2 | 230 | 140 | 110 | 90 | 3 | 16 | 4-Φ14 | 178 | 95 | 10 | |
| 65 | 21/2 | 290 | 160 | 130 | 110 | 3 | 16 | 4-Φ14 | 205 | 105 | 20 | |
| 80 | 3 | 310 | 185 | 150 | 125 | 3 | 18 | 4-Φ18 | 230 | 120 | 25 | |
| 100 | 4 | 350 | 205 | 170 | 145 | 3 | 18 | 4-Φ18 | 255 | 135 | 30 | |
| 125 | 5 | 400 | 235 | 200 | 175 | 3 | 20 | 8-Φ18 | 305 | 158 | 50 | |
| 150 | 6 | 480 | 260 | 225 | 200 | 3 | 20 | 8-Φ18 | 345 | 180 | 65 | |
| 200 | 8 | 495 | 315 | 280 | 255 | 3 | 22 | 8-Φ18 | 415 | 215 | 137 | |
| 250 | 10 | 600 | 370 | 335 | 310 | 3 | 24 | 12-Φ18 | 490 | 240 | 150 | |
注:表中尺寸为不带标准附件数据。另由于产品改进技术创新参数可能有一定变化,请咨询公司技术部门索取新数据。
|
|