
|
上海川沪专业生产的J45J直流式衬胶截止阀具有结构紧凑、启闭灵活、耐腐蚀性能强,行程短(一般为公称通径1/4)等项优点,被广泛应用在石油、化工等管路系统中做截断介质用,但需要强调的是氟塑料衬里的截止阀严禁用做流量调节,以免节流口处产生的高速介质流冲蚀,破坏密封面。直流衬胶截止阀的阀瓣与阀杆设计为一体结构,用以防止由于管路压力波动造成内件冲出阀体的可能性,结构紧凑,使用安全。 |
![]() |
直流衬胶截止阀 |
| 零件名称 | 灰铸铁 | 铸钢 | 不锈耐酸铸钢 | 超低碳不锈耐酸铸阀 | ||
| Z | C | P | R | PL | RL | |
| 阀体/端盖/闸板 | HT250 | WCB | CF8 | CF8M | CF3 | CF3M |
| 阀杆 | 35 | 2Cr13 | 1Cr18Ni9 | 1Cr18Ni12Mo2Ti | 00Cr18Ni10 | 00Cr17Ni14Mo2 |
| 衬里/阀座 | 衬硬橡胶(NR)FEP(F46) PCTFE(F3)PFA(可溶性聚四氟乙烯) | |||||
| 填料/压盖 | WCB | CF8 | CF8M | CF3 | CF3M | |
| 填料 | PTFE(F4) | PTFE(F4) | PTFE(F4) | |||
| 活节螺栓 | 35 | 1Cr17Ni2 | 1Cr17Ni2 | |||
| 阀杆螺母 | ZCuAI10Fe3 | ZCuAI10Fe3 | ZCuAI10Fe3 | |||
| 紧固螺母 | 45 | 1Cr17Ni2 | 1Cr18Ni9Ti | |||
| 螺母 | 0Cr18Ni9 | 0Cr18Ni9 | ||||
| 手轮 | WCB | WCB | WCB | |||
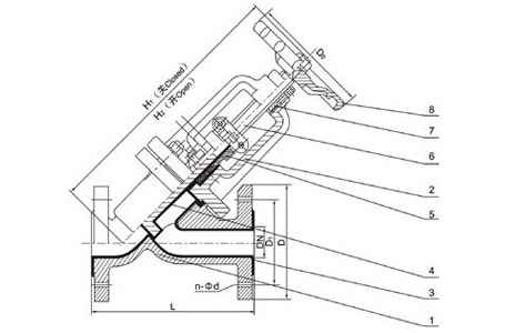
![]() |
直流衬胶截止阀外形尺寸图 |
| 公称通径 | 标准值 | 参考值 | |||||||||||
| DN(mm) | L | D | D1 | D2 | f | b | Z-Фd | D0 | H1 | H2 | WT(Kg) | ||
| PN1.0MPa | |||||||||||||
| 15 | 130 | 95 | 65 | 45 | 2 | 14 | 4-Ф14 | 100 | 165 | 180 | 6.5 | ||
| 20 | 150 | 105 | 75 | 55 | 2 | 16 | 4-Ф14 | 100 | 195 | 215 | 7 | ||
| 25 | 160 | 115 | 85 | 65 | 2 | 16 | 4-Ф14 | 120 | 210 | 235 | 7.8 | ||
| 32 | 180 | 135 | 100 | 78 | 2 | 18 | 4-Ф18 | 140 | 215 | 245 | 11 | ||
| 40 | 200 | 145 | 110 | 85 | 3 | 18 | 4-Ф18 | 140 | 260 | 295 | 13 | ||
| 50 | 230 | 160 | 125 | 100 | 3 | 20 | 4-Ф18 | 160 | 300 | 345 | 15 | ||
| 65 | 290 | 180 | 145 | 120 | 3 | 20 | 4-Ф18 | 180 | 320 | 380 | 23 | ||
| 80 | 310 | 195 | 160 | 135 | 3 | 22 | 4-Ф18 | 240 | 390 | 465 | 38 | ||
| 100 | 350 | 215 | 180 | 155 | 3 | 22 | 8-Ф18 | 240 | 450 | 540 | 42 | ||
| 125 | 400 | 245 | 210 | 185 | 3 | 24 | 8-Ф18 | 280 | 460 | 570 | 55 | ||
| 150 | 480 | 380 | 240 | 210 | 3 | 24 | 8-Ф23 | 320 | 530 | 665 | 77 | ||
| 200 | 600 | 335 | 295 | 265 | 3 | 26 | 8-Ф23 | 360 | 600 | 790 | 135 | ||
| 250 | 730 | 390 | 350 | 320 | 3 | 28 | 12-Ф23 | 400 | 720 | 940 | 220 | ||
注:表中尺寸为不带标准附件数据。另由于产品改进技术创新参数可能有一定变化,请咨询公司技术部门索取新数据。
|
|