
CHD941W-0.5C百叶式方形电动蝶阀是上海川沪设计生产的一种新型节能的高效气流调节设备,百叶式方形电动蝶阀可用于通风除尘管路上作通风、调节设备之用,主要适用于冶金、矿山、水泥、化工、发电等行业的通风除尘及环境保护。具有重量轻、流阻小、结构简单、启动灵 活等特点。百叶式方形电动蝶阀设计新颖,调节板采用多轴、多叶式、使气流均匀、流阻小、调节轻松。各传动部位运转灵活、磨擦系数小、耐磨、耐腐、能充分有效地调节和控制气体流量。 适用介质:空气、 烟气、含粉尘气体、可燃性气体等 |
![]() |
电动方形百叶蝶阀 |
| 公称压力 | 漏风率 | 介质流速 | 适用温度 | 适用介质 |
| 0.05MPa | 1.5% | ≤30m/s | -20~300℃ | 空气、粉尘气体等 |
![]() |
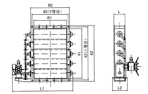
电动方形百叶蝶阀外形尺寸图 |
| A1×B1 | A2×B2 | A3×B3 | L | n-d | X | Y | 风机 | 机号 | L1 | L2 | 重量(kg) |
| 128×92 | 182×148 | 160×126 | 160 | 14-Φ7 | 4 | 3 | 9-19 | NO4 | 580 | 245 | 32 |
| 144×104 | 198×160 | 176×135 | NO4.5 | 590 | 38 | ||||||
| 160×115 | 214×171 | 192×150 | NO5 | 600 | 45 | ||||||
| 179×129 | 233×185 | 212×162 | NO5.6 | 615 | 48 | ||||||
| 202×145 | 258×204 | 236×180 | NO6.3 | 640 | 54 | ||||||
| 196×128 | 150×184 | 228×165 | 9-26 | NO4 | 630 | 52 | |||||
| 221×144 | 175×200 | 252×177 | NO4.5 | 625 | 58 | ||||||
| 245×160 | 299×216 | 284×192 | NO5 | 645 | 62 | ||||||
| 274×179 | 328×235 | 305×212 | 18-Φ7 | 5 | 4 | NO5.6 | 660 | 73 | |||
| 309×202 | 365×261 | 340×236 | NO6.3 | 680 | 88 | ||||||
| 227×163 | 293×232 | 270×204 | 14-Φ10 | 4 | 6 | 9-19 | NO7.1 | 655 | 60 | ||
| 256×184 | 322×253 | 296×228 | NO8 | 670 | 64 | ||||||
| 288×207 | 354×276 | 330×252 | 18-Φ10 | 5 | 4 | NO9 | 685 | 84 | |||
| 320×230 | 386×299 | 360×276 | 180 | NO10 | 710 | 300 | 97 |
| 359×258 | 448×350 | 415×316 | 180 | 18-Φ12 | 5 | 4 | 9-19 | NO11.2 | 750 | 300 | 108 |
| 400×288 | 489×380 | 456×344 | 20-Φ12 | 6 | 4 | NO12.5 | 850 | 125 | |||
| 448×332 | 557×444 | 516×405 | 22-Φ12 | 6 | 5 | NO14 | 950 | 143 | |||
| 512×368 | 621×484 | 574×440 | 24-Φ12 | 7 | 5 | NO16 | 970 | 177 | |||
| 348×227 | 414×296 | 390×272 | 20-Φ10 | 6 | 4 | 9-26 | NO7.1 | 705 | 102 | ||
| 392×256 | 458×325 | 432×300 | NO8 | 730 | 116 | ||||||
| 441×288 | 507×357 | 483×330 | NO9 | 760 | 132 | ||||||
| 490×320 | 556×389 | 528×356 | NO10 | 860 | 158 | ||||||
| 549×358 | 638×450 | 600×410 | 200 | 26-Φ12 | 8 | 5 | NO11.2 | 935 | 365 | 186 | |
| 613×400 | 702×492 | 664×456 | 28-Φ12 | 8 | 6 | NO12.5 | 985 | 204 | |||
| 686×448 | 795×564 | 747×516 | 30-Φ12 | 9 | 6 | NO14 | 1065 | 217 |
注:表中尺寸为不带标准附件数据。另由于产品改进技术创新参数可能有一定变化,请咨询公司技术部门索取新数据。
|
|