
|
上海川沪专业生产的Z41Y铸钢闸阀适用于ANSI Class 150~2500,工作温度<600℃的石油、化工、火力电站等各种工况的管路上,切断或接通管路介质。适用介质为:水、油品、蒸汽等。操作方式有:手动、齿轮传动、电动、气动等。 结构特点: 1.产品设计制造按API标准,密封可靠,性能优良、能与进口设备配套使用。 2.600Lb以上闸板与阀座密封采用司太立(stellite)钴基硬质合金堆焊而成,耐磨、耐高温,耐腐蚀,抗擦伤性能好、使用寿命长 3.阀杆经调质和表面氮化处理,有良好的抗腐蚀性和抗擦伤性。 4.采用楔式弹性闸板结构,中大口径设置滚动轴承,启闭轻松。 5.阀体材料品种齐全,填料、垫片根据实际工况或用户要求合理选配,能适用于各种压力、温度及介质工况。 6.1500LB、2500LB中腔采用压力自紧式密封结构。密封性能随内压升高而升高,可靠性高。 7.倒密封采用不锈钢螺纹连接密封座或本体堆焊奥氏体不锈钢而成,倒密封可靠,填料更换和维修可在不停机情况下进行,方便快捷不影响系统运行。 |
![]() |
锻钢闸阀 |
| 序号 | 零件名称 | CS to ASTM | AS to ASTM | SS to ASTM | |
| Type A105N | Type F22 | Type F304(L) | Type F316(L) | ||
| 1 | 阀体 | A105N | A182 F22 | A182 F304(L) | A182 F316(L) |
| 2 | 阀座 | A276 420 | A276 304 | A276 304(L) | A276 316(L) |
| 3 | 闸板 | A182 F430 | A182 F304 | A182 F304(L) | A182 F316(L) |
| 4 | 阀杆 | A182 F6a | A182 F304 | A182 F304(L) | A182 F316(L) |
| 5 | 垫片 | 316夹柔性石墨 | 316夹PTFE | ||
| 6 | 阀盖 | A105 | A182 F22 | A182 F304(L) | A182 F316(L) |
| 7 | 阀盖 螺栓 | A193 B7 | A193 B16 | A193 B8 | A193 B8M |
| 8 | 圆柱销 | A276 420 | A276 304 | ||
| 9 | 填料压套 | A276 410 | A182 F304(L) | A182 F316(L) | |
| 10 | 活节螺栓 | A193 B7 | A193 B16 | A193 B8 | A193 B8M |
| 11 | 填料压板 | A105 | A182 F304 | ||
| 12 | 螺母 | A194 2H | A194 4 | A194 8 | A194 8M |
| 13 | 阀杆螺母 | A276 420 | |||
| 14 | 锁紧螺母 | A194 2H | A194 4 | A194 8 | A194 8M |
| 15 | 铭牌 | SS | |||
| 16 | 手轮 | A197 | |||
| 17 | 润滑垫片 | A273 431 | |||
| 18 | 填料 | 柔性石墨 | PTFE | ||
| 适用介质 | 水、蒸汽、油品等 | 水、蒸气、油品等 | 硝酸、醋酸等 | ||
| 适用温度 | -29°C~425°C | -29°C~550°C | -29°C~200°C | ||
![]() |
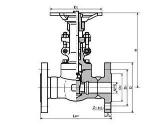
锻钢闸阀外形尺寸图 |
| NPS | 1/2 | 3/4 | 1 | 11/4 | 11/2 | 2 | ||
| L(RF) L1(BW) |
150Lb | 108 | 117 | 127 | 140 | 165 | 203 | |
| 300Lb | 145 | 152 | 165 | 178 | 190 | 216 | ||
| 600Lb | 165 | 190 | 216 | 229 | 241 | 292 | ||
| H(开) | 150,300Lb | 158 | 169 | 197 | 236 | 246 | 283 | |
| 600Lb | 169 | 197 | 236 | 246 | 283 | 320 | ||
| W | 100 | 100 | 125 | 160 | 160 | 180 | ||
| 重量 | 150 | RTJ | 4.5 | 5.2 | 8.2 | 11.5 | 12.5 | 20.3 |
| BW | 2.8 | 3.3 | 5.4 | 7.1 | 8.2 | 12.5 | ||
| 300 | RTJ | 4.8 | 6.2 | 9.3 | 14 | 15.5 | 23.4 | |
| BW | 3.5 | 4.4 | 6.8 | 8.1 | 9.2 | 15.4 | ||
| 600 | RTJ | 5.9 | 7.4 | 10.4 | 16.2 | 17.5 | 18.3 | |
| BW | 4.5 | 5.1 | 8.2 | 10.5 | 12.4 | 20.1 | ||
| NPS | 1/2 | 3/4 | 1 | 11/4 | 11/2 | 2 | |
| L(RTJ) | 900-1500Lb | 216 | 229 | 254 | 279 | 305 | 371 |
| L1(BW) | 900-1500Lb | 216 | 229 | 254 | 279 | 305 | 368 |
| H(开) | 197 | 197 | 236 | 246 | 283 | 330 | |
| W | 125 | 125 | 160 | 160 | 180 | 200 | |
| 重量 | RTJ | 7.2 | 11.5 | 15.6 | 16.2 | 22.6 | 32.8 |
| BW | 5.2 | 9.3 | 12.4 | 13.8 | 18.9 | 27.5 | |
注:表中尺寸为不带标准附件数据。另由于产品改进技术创新参数可能有一定变化,请咨询公司技术部门索取新数据。
|
|