
|
上海川沪专业设计生产的KP快速排气阀设计合理,结构合理,体积小,排气量小,我司在原来基础上进行大量改进使KP型更完美。快速排气阀用于管道高点或闭气的地方来排除管内气体疏通管道,使管道运转正常,出水量达到设计要求,如不装此产品管内气体形成气阻管道水量达不到设计要求。管道在运转时出现停电,停泵管道随时会出现负压力而引起管道振动或破裂,快速排气阀快速吸入大量空气,防止管道振动或破裂,确保管路安全。 |
![]() |
KP快速排气阀 |
| 序号 | 零件名称 | 铸铁 | 铸钢 |
| Z | C | ||
| 1 | 阀体 | 铸铁 | WCB |
| 2 | 阀盖/上盖 | 铸铁 | WCB |
| 3 | 浮球 | 不锈钢 | 不锈钢 |
| 4 | 杠杆 | 铝青铜(或2Cr13) | 2Cr13 |
| 5 | 塞头 | 橡胶 | 橡胶 |
| 6 | 螺丝/螺帽 | 35#钢 | B7/2H |
![]() |
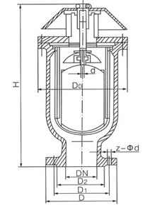
KP快速排气阀外形尺寸图 |
| 公称通径 | D | D1 | D2 | D3 | H | Z-φd |
| DM(mm) | ||||||
| 25 | 115 | 85 | 65 | 140 | 285 | 4-14 |
| 50 | 160 | 125 | 102 | 160 | 340 | 4-14 |
| 80 | 195 | 160 | 135 | 205 | 490 | 4-18 |
| 100 | 215 | 180 | 158 | 240 | 545 | 8-18 |
| 150 | 280 | 240 | 212 | 300 | 615 | 8-23 |
| 200 | 335 | 295 | 268 | 380 | 730 | 8-23 |
注:表中尺寸为不带标准附件数据。另由于产品改进技术创新参数可能有一定变化,请咨询公司技术部门索取新数据。
|
|