
上海川沪阀门有限公司研发、生产的气动薄膜调节蝶阀,是由气动薄膜执行机构和低负载蝶阀组成。气动薄膜调节蝶阀可外配气动阀门定位器,输入控制信号(4-20mADC或1-5VDC)气源即可控制运转阀,操作极其简单。气动薄膜调节蝶阀阀体采用金属但偏心结构或钢板焊接结构,按阀体结构分为开放型和后座型两种型式。开放型为无阀座结构,因此泄漏量大,后座型是在开放型结构的基础上增加了阀座,因而其泄漏量较开放型有较大改善。气动薄膜调节蝶阀主要适用于对低压介质的流量、压力控制。该气动蝶阀具有结构简单、操作方便、重量轻等特点。 |
|
气动薄膜调节蝶阀 |
1、阀体
| 阀体形式 |
直通铸造蝶阀 |
| 公称通径 |
DN50~1000mm |
| 公称压力 |
PN1.0、1.6 MPa |
| 法兰标准 |
JIS B220、JB/T79、ANSI B16.5-1981、GB/T9113、HG20594-97、HG20618-97等 |
| 连接形式 |
法兰式、对夹式 |
| 阀盖形式 |
一体式 |
| 压盖型式 |
压盖压紧式 |
| 密封填料 |
V型聚四氟乙烯填料、柔性石墨填料 |
2、阀内件
| 阀板形式 |
垂直板式(蝶形) |
| 流量特性 |
调节型(近似等百分比)、开关型(线性) |
2、执行机构
| 执行器型号 |
GT系列、SR系列、AT系列、AW系列单双作用气动执行器 |
| 供气压力 |
400~700KPa |
| 气源接口 |
G1/4"、G1/8"、G3/8"、G1/2" |
| 环境温度 |
-30~+70℃ |
| 作用形式 |
单作用执行机构:气关式(B)--失气时阀位开(FO);气开式(K)--失气时阀位关(FC)
双作用执行机构:气关式(B)--失气时阀位保持(FL);气开式(K)-- 失气时阀位保持(FL) |
| 可配附件 |
定位器、电磁阀、空气过滤减压器、保位阀、行程开关、阀位传送器、手轮机构等 |
| 公称通径 |
DN(mm) |
50~1000 |
| 公称压力 |
PN(MPa) |
0.6 |
1.0 |
1.6 |
| 试验压力 |
强度试验 |
0.9 |
1.5 |
2.4 |
| 密封试验 |
0.66 |
1.1 |
1.76 |
| 气密封试验 |
0.6 |
0.6 |
0.6 |
| 适用介质 |
空气、水、污水、蒸气、煤气、油品等。 |
| 驱动形式 |
气动传动 |
| 零件名称 |
主要材料 |
| 阀体 |
球墨铸钢、铸钢、合金钢、不锈钢 |
| 蝶板 |
灰铸铁、球墨铸钢、铸钢、不锈钢及特殊材料 |
| 密封圈 |
各种橡胶、聚四氟 |
| 阀杆 |
2Cr13、不锈钢 |
| 填料 |
O型圈、柔性石墨O |
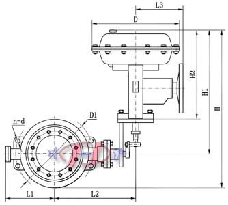
| 公称通径 |
D1 |
L1 |
L2 |
n-d |
H |
H1 |
H2 |
D |
L3 |
法兰端面距 |
| 50 |
110 |
92 |
200 |
4-14 |
637 |
582 |
382 |
280 |
278 |
60 |
| 80 |
150 |
92 |
200 |
4-18 |
644 |
582 |
382 |
280 |
278 |
| 100 |
175 |
102 |
210 |
654 |
280 |
278 |
| 125 |
200 |
117 |
234 |
8-18 |
723 |
636 |
436 |
325 |
278 |
| 150 |
225 |
130 |
247 |
736 |
325 |
278 |
| 200 |
280 |
172 |
287 |
763 |
325 |
278 |
70 |
| 250 |
335 |
197 |
327 |
12-18 |
1008 |
853 |
615 |
410 |
376 |
| 300 |
395 |
227 |
351 |
12-23 |
1034 |
410 |
376 |
80 |
| 350 |
445 |
252 |
376 |
1059 |
410 |
376 |
| 400 |
495 |
296 |
432 |
16-23 |
1238 |
1007 |
720 |
495 |
376 |
100 |
| 450 |
550 |
321 |
459 |
1266 |
495 |
376 |
| 500 |
600 |
346 |
484 |
1291 |
495 |
376 |
| 600 |
705 |
480 |
565 |
20-25 |
1486 |
1109 |
796 |
|
180 |
150 |
| 700 |
810 |
530 |
615 |
24-25 |
1539 |
|
180 |
| 800 |
920 |
595 |
675 |
24-30 |
1596 |
|
180 |
200 |
| 900 |
1020 |
685 |
770 |
24-30 |
1661 |
1124 |
|
180 |
| 1000 |
1120 |
735 |
810 |
28-30 |
1711 |
1124 |
|
180 |
200 |
注:表中尺寸为不带标准附件数据。另由于产品改进技术创新参数可能有一定变化,请咨询公司技术部门索取新数据。