
|
上海川沪阀门有限公司专业制造的J41Y法兰式锻钢截止阀是一种常用的高温高压截断阀,主要用来接通或截断管路中的介质,一般不用于调节流量。J41Y锻钢截止阀适用的压力、温度范围很大,本阀适用于小口径的管道,密封面不易磨损、擦伤,密封性能好,启闭时阀瓣行程小,启闭时间较短,阀门高度较小。锻钢截止阀有三种阀盖设计形式。第一种是螺栓式阀盖,按这种设计形式设计的阀门,其阀体与阀盖用螺栓螺母连接,缠绕式垫片 (316夹柔性石墨制造)密封。客户有特殊要求时也可采用金属环连接。第二种设计形式是焊接式阀盖,按这种设计形式的阀门,其阀体与阀盖用螺纹连接,全焊密封。客户有特殊要求时也可采用全焊逶连接。第三种是压力自紧式阀盖,按这种设计形式设计的阀门,其阀体与阀盖用螺纹连接,内压自密封环密封。 |
![]() |
J41Y高压法兰锻钢截止阀 |
| 序号 | 零件名称 | CS to ASTM | AStoASTM | SS to ASTM | |
| TypeAl05 | Type f22 | Type F304(L) | Type F316(L) | ||
| l | 阀体 | A105 | A182 F22 | A182 F304(L) | A182 F316(L) |
| 2 | 阀瓣 | A276 42() | A276 F304 | A276 F304(L) | A276 F316(L) |
| 3 | 阀杆 | A182 F6 | A182 F304 | A182 F304(L) | A182 F316(L) |
| 4 | 垫片 | 3l6夹柔性石墨 | 316夹SS+PTFE | ||
| 5 | 阀盖 Bonnet | A105 | A276 304 | A276 304(L) | A276 316(L) |
| 6 | 阀盖螺栓 | A193 B7 | A193 B16 | A193 B8 | A193 B8M |
| 7 | 圆柱销 | A276 420 | A276 304 | ||
| 8 | 填料压套 Gland | A276410 | A182 F304(L) | Al 82 F316(L) | |
| q | 活节螺栓 | A193 B7 | A193 B16 | A193 B8 | A193 B8M |
| 10 | 填料压板 | A216 WCB | A351 CF8 | ||
| 11 | 螺母 | A194 211 | A194 4 | A194 8 | A194 8M |
| 12 | 阀杆螺母 | A276 410 | |||
| 13 | 螺母 | A194 2H | A194 4 | A194 8 | A194 8M |
| 14 | 铭牌 | SS | |||
| 15 | 手轮 | A197 | |||
| 16 | 填料 | 柔性石墨 | PTFE | ||
| 适用介质 | 水、蒸汽、油品等 | 水、蒸汽、油品等 | 硝酸、醋酸等 | ||
| 适用温度 | -29℃~425℃ | -29℃~550℃ | -29℃~1扪℃ | ||
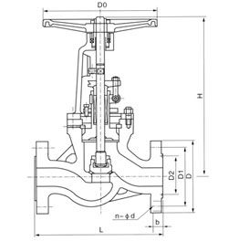
![]() |
J41Y高压法兰锻钢截止阀 外形尺寸图 |
800Lb
| NPS | 缩径 | 3/8 | 1/2 | 3/4 | 1 | 1 1/4 | 1 1/2 | 2 | / | |
| 全径 | / | 3/8 | 1/2 | 3/4 | 1 | 1 1/4 | 1 1/2 | 2 | ||
| L | 79 | 79 | 92 | 11 1 | 120 | 152 | l72 | 200 | ||
| H(开OPEN) | l66 | 1 66 | 171 | 207 | 240 | 258 | 330 | 355 | ||
| W | 100 | 1 00 | l 00 | 1 25 | 160 | 160 | 180 | 200 | ||
| 重量 | 螺栓式 | 1 9 | 1.9 | 2.1 | 3.5 | 6.0 | 7.5 | 11.4 | l4 6 | |
| 焊接式 | 1 7 | l 7 | 1 9 | 3 3 | 5 2 | 6 8 | l0.6 | 13 8 | ||
900-1500Lb
| NPS | 缩径 | 3/8 | 1/2 | 3/4 | 1 | 1 1/4 | 1 1/2 | 2 | / | |
| 全径 | / | 3/8 | 1/2 | 3/4 | 1 | 1 1/4 | 1 1/2 | 2 | ||
| L | 92 | 111 | 111 | 120 | 152 | l72 | 200 | 220 | ||
| H(开OPEN) | 171 | 207 | 207 | 240 | 258 | 330 | 355 | 370 | ||
| W | 100 | 1 25 | l 25 | 160 | 160 | 180 | 200 | 240 | ||
| 重量 | 螺栓式 | 2.2 | 3.7 | 3 6 | 6.8 | 7.6 | 11.6 | 15.0 | 21.9 | |
| 焊接式 | 2.O | 3.4 | 3 3 | 6.O | 5.6 | 10.3 | 14.2 | 18.0 | ||
|
|