
|
上海川沪阀门有限公司除了生产国标的各种球阀,还可以根据客户要求,定制API美标球阀和JIS日标球阀,美标球阀压力从150LB到1500LB,日标球阀压力从10K到40K等,满足客户的特殊需求。美标日标球阀的适用介质:水、气、油品、天然气和酸碱腐蚀性介质。 |
![]() |
美标、日标球阀 |
| 设计依据 | 日标系列 | 美标系列 | |
| 设计标准 | BS5351 | AP16D | ANSI B16.34 |
| 法兰连接结构长度 | JIS B2002 | AP16D | ANSI B16.10 |
| 结构长度(焊接) | - | AP16D | ANSI B16.10 |
| 连接法兰 | JIS B2212 B2214 | ANSI B16.5、B16.47 | |
| 对焊端 | - | ANSI B16.25 | |
| 试验和检验 | JIS B2003 | AP16D | AP1598 |
| 名称 | WCB类 | CF8类 |
CF3类 | CF8M类 | CF3M类 | |
| 阀体左体 | A216-WCB | A315-CF8 | A35-CF3 | A351-CF8M | A351-CF3M | |
| 球体 | B2-B8 | A105-1025 | A182-F304L | A182-F304L | A132-F316 | A182-F316L |
| B8以上 | A216-WCB | A351-CF8M | A351-CF3 | A351-CF8M | A351-CF3M | |
| 阀杆 | A182-F6a | A182-F304 | A182-F304L | A182-F336 | A182-F316L | |
| 阀座 | PTFE/增强PTFE/NYLIN PTFE/Reinforced PTFE/Nyion | |||||
| 阀座支承圈 | A105-1025 | A182-F304 | A182-F304L | A182-F316 | A182-F316L | |
| 弹簧 | 3yc-7/17-49H | |||||
| O形圈 | NBR | 氟橡胶 | ||||
| 螺柱 | A193-B7 | A193-B8 | ||||
| 螺母 | A194-2H | A194-8 | ||||
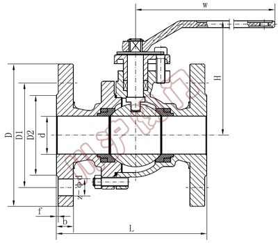
![]() |
美标、日标球阀 外形尺寸图 |
美标球阀
| 公称压力 | 公称通径 | d | L | D | D1 | D2 | b | f | Z-Φd | H | W |
| Class 150 | 1/2" | 13 | 108 | 89 | 60.5 | 35 | 11.5 | 1.6 | 4-16 | 79 | 135 |
| 3/4" | 19 | 117 | 98 | 70 | 43 | 11.5 | 1.6 | 4-16 | 84 | 135 | |
| 1" | 25 | 127 | 108 | 79.5 | 51 | 12 | 1.6 | 4-16 | 95 | 170 | |
| 1-1/4" | 32 | 140 | 117 | 89 | 64 | 13 | 1.6 | 4-16 | 103 | 170 | |
| 1-1/2" | 38 | 165 | 127 | 98.5 | 73 | 15 | 1.6 | 4-16 | 111 | 200 | |
| 2" | 51 | 178 | 152 | 120.5 | 92 | 16 | 1.6 | 4-19 | 120 | 200 | |
| 2-1/2" | 64 | 190 | 178 | 139.5 | 105 | 18 | 1.6 | 4-19 | 153 | 300 | |
| 3" | 76 | 203 | 190 | 152.5 | 127 | 19 | 1.6 | 4-19 | 163 | 300 | |
| 4" | 102 | 229 | 229 | 190.5 | 157 | 24 | 1.6 | 8-19 | 182 | 400 | |
| 5" | 127 | 356 | 254 | 216 | 186 | 24 | 1.6 | 8-22 | 260 | 500 | |
| 6" | 152 | 394 | 279 | 241.5 | 216 | 26 | 1.6 | 8-22 | 280 | 800 | |
| 8" | 203 | 457 | 343 | 298.5 | 270 | 29 | 1.6 | 8-22 | - | 1100 |
| Class 300 |
1/2" | 13 | 140 | 95 | 66.5 | 35 | 15 | 1.6 | 4-16 | 79 | 135 |
| 3/4" | 19 | 152 | 117 | 82.5 | 43 | 16 | 1.6 | 4-19 | 84 | 135 | |
| 1" | 25 | 165 | 124 | 89 | 51 | 18 | 1.6 | 4-19 | 95 | 170 | |
| 1-1/4" | 32 | 178 | 133 | 98.5 | 64 | 19 | 1.6 | 4-19 | 103 | 170 | |
| 1-1/2" | 38 | 190 | 156 | 114.5 | 73 | 21 | 1.6 | 4-22 | 111 | 200 | |
| 2" | 51 | 216 | 165 | 127 | 92 | 23 | 1.6 | 4-22 | 120 | 200 | |
| 2-1/2" | 64 | 241 | 190 | 149 | 105 | 26 | 1.6 | 8-19 | 153 | 300 | |
| 3" | 76 | 283 | 210 | 168.5 | 127 | 29 | 1.6 | 8-22 | 163 | 300 | |
| 4" | 102 | 305 | 254 | 200 | 157 | 32 | 1.6 | 8-22 | 182 | 400 | |
| 5" | 127 | 381 | 279 | 235 | 186 | 35 | 1.6 | 8-22 | 260 | 500 | |
| 6" | 152 | 403 | 318 | 270 | 216 | 37 | 1.6 | 12-22 | 280 | 800 | |
| 8" | 203 | 502 | 381 | 330 | 270 | 42 | 1.6 | 12-25 | - | 1100 |
| 公称压力 | 公称通径 | d | L | D | D1 | D2 | b | f | Z-Φd | H | W |
| JIS10K | 15 | 15 | 108 | 95 | 70 | 52 | 12 | 1 | 4-15 | 79 | 135 |
| 20 | 20 | 117 | 100 | 75 | 58 | 14 | 1 | 4-15 | 84 | 135 | |
| 25 | 25 | 127 | 125 | 90 | 70 | 14 | 1 | 4-19 | 95 | 170 | |
| 32 | 32 | 140 | 135 | 100 | 80 | 16 | 2 | 4-19 | 103 | 170 | |
| 40 | 38 | 165 | 140 | 105 | 85 | 16 | 2 | 4-19 | 111 | 200 | |
| 50 | 50 | 178 | 155 | 120 | 100 | 16 | 2 | 4-19 | 120 | 200 | |
| 65 | 64 | 190 | 175 | 140 | 120 | 18 | 2 | 4-19 | 153 | 300 | |
| 80 | 76 | 203 | 185 | 150 | 130 | 18 | 2 | 8-19 | 163 | 300 | |
| 100 | 100 | 229 | 210 | 175 | 155 | 18 | 2 | 8-19 | 182 | 400 | |
| 125 | 125 | 356 | 250 | 210 | 185 | 20 | 2 | 8-23 | 260 | 500 | |
| 150 | 150 | 394 | 280 | 240 | 215 | 22 | 2 | 8-23 | 280 | 800 | |
| 200 | 200 | 457 | 330 | 290 | 265 | 22 | 2 | 12-23 | - | 1100 |
| JIS20K | 15 | 15 | 140 | 95 | 70 | 52 | 14 | 1 | 4-15 | 79 | 135 |
| 20 | 20 | 152 | 100 | 75 | 58 | 16 | 1 | 4-15 | 84 | 135 | |
| 25 | 25 | 165 | 125 | 90 | 70 | 16 | 1 | 4-19 | 95 | 170 | |
| 32 | 32 | 178 | 135 | 100 | 80 | 18 | 2 | 4-19 | 103 | 170 | |
| 40 | 38 | 190 | 140 | 105 | 85 | 18 | 2 | 4-19 | 111 | 200 | |
| 50 | 50 | 216 | 155 | 120 | 100 | 18 | 2 | 8-19 | 120 | 200 | |
| 65 | 64 | 241 | 175 | 140 | 120 | 20 | 2 | 8-19 | 153 | 300 | |
| 80 | 76 | 283 | 200 | 160 | 135 | 22 | 2 | 8-23 | 163 | 300 | |
| 100 | 100 | 305 | 225 | 185 | 160 | 24 | 2 | 8-23 | 182 | 400 | |
| 125 | 125 | 381 | 270 | 225 | 195 | 26 | 2 | 8-25 | 260 | 500 | |
| 150 | 150 | 403 | 305 | 260 | 230 | 28 | 2 | 12-25 | 280 | 800 | |
| 200 | 200 | 502 | 350 | 305 | 275 | 30 | 2 | 12-25 | - | 1100 |
|
|