
|
上海川沪阀门有限公司专业生产的Q41H金属密封球阀,适用于介质温度超过200度,或者含有较硬颗粒的工况,可以可靠地耐受高温、磨损,主要特点有: 1、先进的阀座:聚多年球阀制造经验而设计的阀座,确保阀门密封,磨擦系数低,操作力矩小、多种阀座材料、适应范围广。 |
![]() |
Q41H硬密封球阀 |
| 设计依据 | 国标系列 | 美标系列 | |
| 设计标准 | GB/T12237 | AP16D | ANSI B16.34 |
| 法兰连接结构长度 | GB/T12221 | AP16D | ANSI B16.10 |
| 结构长度(焊接) | GB/T15188.1 | AP16D | ANSI B16.10 |
| 连接法兰 | GB/T9113 JB/T79 Hg20592 |
ANSI B16.5、B16.47 | |
| 对焊端 | GB/T12224 | ANSI B16.25 | |
| 试验和检验 | GB/T9092 | AP16D | AP1598 |
| 材料 标准 零件名称 |
材料牌号 | 序 号 |
材料 标准 零件名称 |
材料牌号 | ||||||
| 碳钢 | 不锈钢 | 碳钢 | 不锈钢 | |||||||
| GB | ASTM | GB | ASTM | GB | ASTM | GB | ASTM | |||
| 阀体 | WCB | A216-WCB | ZG1Cr18Ni9Ti ZG1Cr18Ni12Mo2Ti |
CF8/CF8M/ CF3/CF3M |
10 | 阀座密封圈 | 石墨 | |||
| 阀盖 | WCB | A216-WCB | ZG1Cr18Ni9Ti ZG1Cr18Ni12Mo2Ti |
CF8/CF8M/ CF3/CF3M |
11 | 阀杆 | 2Cr13 | A276-410 | 1Cr18Ni9Ti 1Cr18Ni12Mo2Ti |
F304/F316 /F304L/F316L |
| 双头螺柱 | 35CrMoA | A193-B7 | 1Cr17Ni2 | A193-B8M | 12 | 止推轴承 | 金属夹PTFE | |||
| 螺母 | 45 | A194-2H | 0Cr18Ni | A194-8M | 13 | 阀杆填料 | 石墨 | |||
| 垫圈 | 金属夹石墨 | 14 | 填料压环 | 2Cr13 | A276-410 | 1Cr18Ni9Ti 1Cr18Ni12Mo2Ti |
F304/F316 /F304L/F316L |
|||
| 球体 | 2Cr13渗氮 | A276-410渗氮 | 1Cr18Ni9Ti 1Cr18Ni12Mo2Ti渗氮 |
F304/F316 /F304L/F316L 渗氮 |
15 | 填料压盖 | WCB | A216-WCB | ZG1Cr18Ni9Ti ZG1Cr18Ni12Mo2Ti |
CF8/CF8M/ CF3/CF3M |
| 阀座 | 2Cr13渗氮 | A276-410渗氮 | 1Cr18Ni9Ti 1Cr18Ni12Mo2Ti渗氮 |
F304/F316 /F304L/F316L 渗氮 |
16 | 螺钉 | 35CrMoA | A193-B7 | 1Cr17Ni2 | A193-B8M |
| 阀座支承圈 | 2Cr13 | A276-410 | 1Cr18Ni9Ti 1Cr18Ni12Mo2Ti |
F304/F316 /F304L/F316L |
17 | 定位板 | 2Cr13 | A276-410 | 1Cr18Ni9Ti | 304 |
| 阀座弹簧 | 17-7PH | 17-7PH | 17-7PH | 17-7PH | ||||||
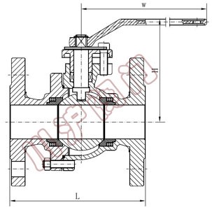
![]() |
Q41H硬密封球阀 外形尺寸图 |
| 公称通径DN | 15 | 20 | 25 | 32 | 40 | 50 | 65 | 80 | 100 | 125 | 150 | 200 |
| L | 130 | 140 | 150 | 165 | 180 | 200 | 220 | 250 | 280 | 320 | 360 | 400 |
| H | 59 | 63 | 75 | 105 | 95 | 107 | 142 | 152 | 178 | 252 | 272 | 342 |
| W | 130 | 130 | 160 | 180 | 230 | 230 | 400 | 400 | 650 | 1050 | 1050 | 1410 |
| Wt(㎏) | 2.5 | 3 | 5 | 6 | 7 | 10 | 15 | 19 | 33 | 58 | 93 | 160 |
| 公称通径DN | 15 | 20 | 25 | 32 | 40 | 50 | 65 | 80 | 100 | 125 | 150 | 200 |
| L | 130 | 140 | 150 | 165 | 180 | 200 | 220 | 250 | 280 | 320 | 360 | 400 |
| H | 59 | 63 | 75 | 105 | 95 | 107 | 142 | 152 | 178 | 252 | 272 | 342 |
| W | 130 | 130 | 160 | 180 | 230 | 230 | 400 | 400 | 650 | 1050 | 1050 | 1410 |
| Wt(㎏) | 2.5 | 3 | 5 | 6.5 | 9 | 12 | 20 | 25 | 44 | 75 | 105 | 200 |
| 公称通径DN | 15 | 20 | 25 | 32 | 40 | 50 | 65 | 80 | 100 | 125 | 150 | 200 |
| L | 130 | 140 | 150 | 180 | 200 | 220 | 250 | 280 | 320 | 400 | 400 | 400 |
| H | 59 | 63 | 75 | 85 | 95 | 107 | 142 | 152 | 178 | 252 | 272 | 342 |
| W | 130 | 130 | 160 | 230 | 230 | 400 | 400 | 700 | 1100 | 1100 | 1500 | 1500 |
| Wt(㎏) | 3 | 4 | 5 | 7 | 9 | 12 | 18 | 28 | 46 | 75 | 106 | 190 |
| 公称通径DN | 15 | 20 | 25 | 32 | 40 | 50 | 65 | 80 | 100 | 125 | 150 | 200 |
| L | 165 | 190 | 216 | 229 | 241 | 292 | 330 | 356 | 432 | 508 | 559 | 660 |
| H | 59 | 63 | 75 | 97 | 107 | 142 | 152 | 178 | 252 | 272 | 305 | 398 |
| W | 130 | 130 | 160 | 230 | 230 | 400 | 400 | 700 | 1100 | 1100 | 1500 | 1800 |
| Wt(㎏) | 6.5 | 7 | 8 | 12 | 14 | 18 | 28 | 40 | 65 | 98 | 140 | 250 |
| 公称通径DN | 15 | 20 | 25 | 32 | 40 | 50 | 65 | 80 | 100 | 125 | 150 | 200 |
| L | 165 | 190 | 216 | 229 | 241 | 292 | 330 | 356 | 432 | 508 | 559 | 660 |
| H | 59 | 63 | 75 | 97 | 107 | 142 | 152 | 178 | 252 | 272 | 305 | 398 |
| W | 130 | 130 | 160 | 230 | 230 | 400 | 400 | 700 | 1100 | 1100 | 1500 | 1800 |
| Wt(㎏) | 6.5 | 7 | 10 | 15 | 18 | 25 | 32 | 46 | 75 |
|
|