
|
上海川沪阀门有限公司专业生产的CS45自由半浮球式蒸汽疏水阀是机械型疏水阀中工作性能可靠的疏水阀之一。它的内部结构只有一个半浮球式的球桶为活动部件,开口朝下,半浮球式的球桶外圆经过精细研磨,整个球面都可为密封面。使用寿命很长,能抗水锤,没有易损件,无故障,经久耐用,无蒸汽泄漏,节能效果好。自由半浮球式蒸汽疏水阀用于蒸汽加热设备,蒸汽管网凝结水回收系统。 工作原理: 自由半浮球式蒸汽疏水阀只有一个半浮球式的球桶为活动部件,开口朝下,球桶即是启闭件,又是密封件。当装置刚启动时,管道内的空气和低温凝结水经过发射管进入疏水阀内,阀内的双金属片排空元件把球桶弹开,阀门开启,空气和低温凝结水迅速排出。当蒸汽进入球桶内,球桶产生向上浮力,同时阀内的温度升高,双金属片排空元件收缩,球捅漂向阀口,阀门关闭。当球桶内的蒸汽变成凝结水,球桶失去浮力往下沉,阀门开启,凝结水迅速排出。当蒸汽再进入球桶之内,阀门再关闭,间断和连续工作。由于阀座处于水封隔离,水汽分开,工作时无蒸汽泄漏。 |
![]() |
CS45自由半浮球式疏水阀 |
| 型号 | PN | 工作压力/MPa | 适用温度/℃ | 适用介质 |
| CS15H-16C | 16 | 1.6 | ≤350 | 蒸汽、水 |
| CS45H-16C | 16 | 1.6 | ≤350 | 蒸汽、水 |
![]() |
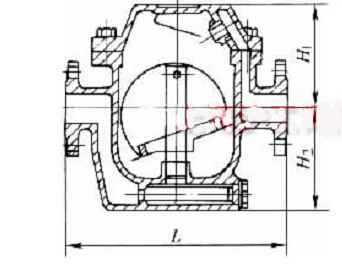
CS45自由半浮球式疏水阀外形尺寸图 |
| 型号 | DN | L | H1 | H2 | W |
| CS15H-16C | 15 | 170 | 75 | 93 | 120 |
| 20 | 170 | 75 | 93 | 120 | |
| 25 | 170 | 75 | 93 | 120 | |
| 32 | 210 | 95 | 155 | 160 | |
| 40 | 210 | 95 | 155 | 160 | |
| 50 | 210 | 95 | 155 | 160 | |
| CS45H-16C | 15 | 230 | 75 | 93 | 120 |
| 20 | 230 | 75 | 93 | 120 | |
| 25 | 230 | 75 | 93 | 120 | |
| 32 | 270 | 95 | 155 | 160 | |
| 40 | 270 | 95 | 155 | 160 | |
| 50 | 270 | 95 | 155 | 160 | |
| CS45H-16(AA) | 65 | 380 | 177 | 172 | 290 |
| 80 | 380 | 177 | 172 | 290 | |
| 100 | 380 | 177 | 172 | 290 |
注:表中尺寸为不带标准附件数据。另由于产品改进技术创新参数可能有一定变化,请咨询公司技术部门索取新数据。
|
|